TE 2MXV B40
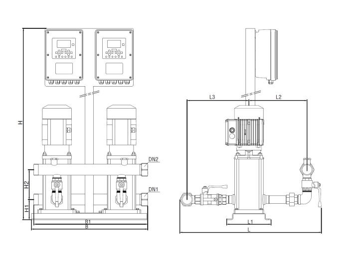
Sistemi di pompaggio o gruppi di pressurizzazione a 2 pompe multistadio VERTICALI CALPEDA, realizzati con inverter raffreddati ad acqua. Le pompe si avviano in cascata e con una alternanza di avvio e di funzionamento che assicura un utilizzo uniforme delle stesse. I gruppi sono dotati di arresto di emergenza in caso di mancanza di acqua con sequenza automatica di riavvio e di sistema antibloccaggio che avvia le pompe almeno una volta al giorno.
I gruppi di pressurizzazione sono dotati di tecnologia NFC Per la programmazione e l'invio dei dati di funzionamento tramite smartphone.
* NOTA BENE: I DATI ELETTRICI INDICATI SONO VALORIZZATI PER 2 POMPE.


























